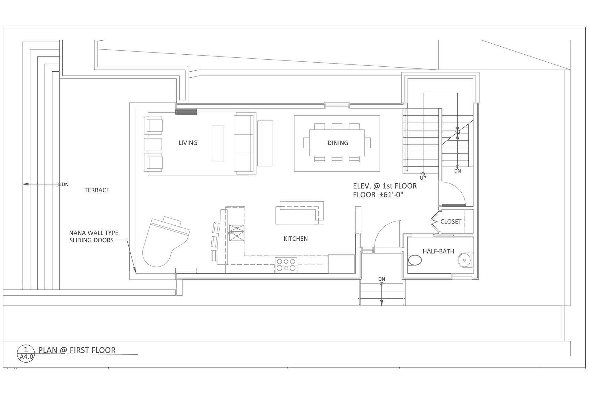
studio J2's Residential Work New Cambridge Home < Back to Residential New Cambridge Home New home in Cambridge, MA 3D Studies 13D Studies 2Material StudyFirst Floor Plan Back to Residential