studio J2's Residential Work

Modern Retreat

Modern Retreat

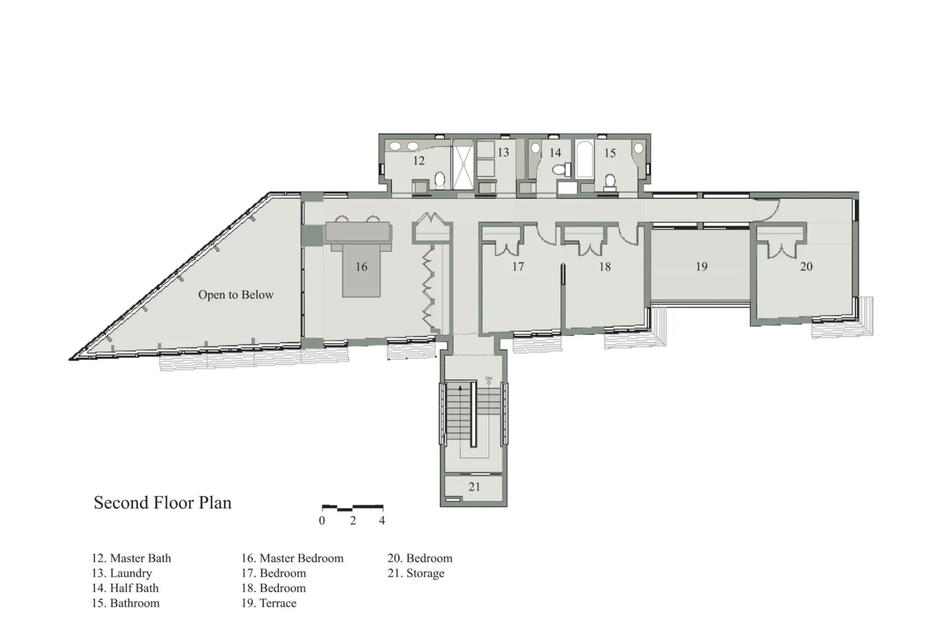
The client wanted clean lines, commercial / industrial materials and large expanses of glass for this 5,000 SF new modern home in Weston, MA. The resulting design utilizes aluminum curtain wall for windows with corrugated metal and wood shiplap siding.
Scroll to Top