Commercial + Cultural
Designing places where culture and community come alive.
Urban Performing Arts
When studio J2 architects designed the Music Hall Loft – Center for Performing Arts, Literature, and Education in Portsmouth, New Hampshire, they were inspired by a quote by Goethe: “Music is liquid architecture, architecture is frozen music.” They based the design on the song “Blue in Green” by Miles Davis.
Innovation Lobby
Gut renovation of a lobby in Cambridge, MA. BioMed Realty wanted an entry space for their building that would attract attention and encourage lively interaction.
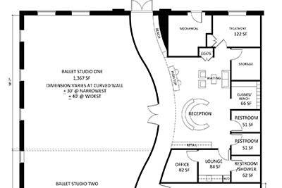
Collaborative Office Space
Curved forms and open meeting spaces highlight the view and create a lively environment for BioMed Realty’s new regional offices.
Art Gallery Lobby
Renovation of an office building lobby in Cambridge, MA. New finishes and lighting were designed to allow the space to function as an art gallery as well as the main entrance to the building.
Museum Galleries
Museum galleries in Lowell, MA.
LiveWork Artist Lofts
Live/work artist housing in Lynn, MA.
Design Competitions
The designs for the Holocaust Memorial in Atlantic City, NJ, the Sheffield Festival Centre in England, the World Trade Center Memorial in New York City, and the “Temple of Laughter” competitions all strive to find symbolic and poetic possibilities in architectural design.
Clark University Arts Expansion
Addition to the School of Visual and Performing Arts at Clark University.
Harvard Medical School
New Research Building at Harvard Medical School Amenities Wing in Boston, MA
Multi-Family Housing
We have completed approximately 65 public housing modernization projects in 40 towns across Eastern Massachusetts.
Art House Cinema
Art House Cinema in Cambridge, MA.
Cannon Theatre
Designed and built on an extremely tight budget, Cannon Theatre’s new space consists of an 81 seat black box theatre in Devens, MA.
